R200參考傳感器銘牌上的箭頭指向進行安裝,務必確保箭頭指向與管道中介質的流向一致。 介質具有穩定流態是渦街流量計正確進行體積流量測量的前提條件。因此,請注意以下幾點:


1)測量液體時,應采用豎直管道,且流體自下向上流動,避免出現非滿管管道狀態( 參考視圖A)。流量測 量中斷! 測量豎直管道中自上向下流動的流體時,必須確保測量管始終處于滿管狀態,保證液體的流量 測量精度。
2) 電子部件過熱危險! 流體溫度超過200 °C (392 °F)時,標稱口徑為DN 100 (4")和DN 150 (6")的夾持式 儀表(Prowirl D)禁止采用安裝方向B。
3) 測量熱介質時(例如:蒸汽或流體溫度(TM)超過200 °C (392 °F),選擇安裝方向C或D。 4) 測量冷介質(例如:液氮)時,選擇安裝方向B或D。
5) 選擇“濕蒸汽檢測/測量”選項時,選擇安裝方向C。


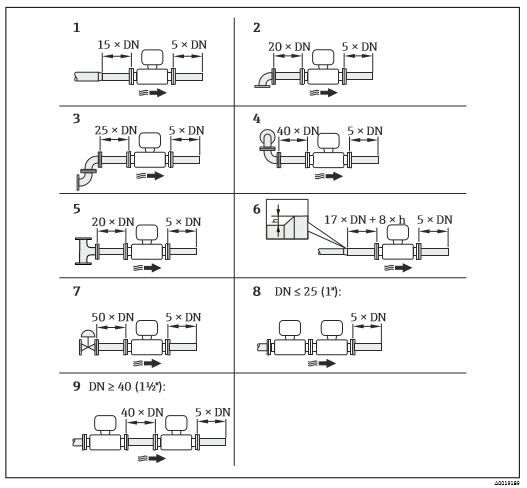
為了便于流量計的日常維護操作,請注意下列安裝尺寸要求( 參考下圖):
• A =100 mm (3.94 in)
• L = L + 150 mm (5.91 in)
旋轉電子腔外殼和顯示單元 安裝后,電子腔外殼可以繞外殼基座360 °°旋轉。顯示單元可以45 °旋轉。因此,用戶可以在任意 位置上便捷地進行儀表讀數。


h 管道擴徑時產生的高度差 1 一級縮徑管 2 單向彎頭(90°彎頭) 3 雙向彎頭(2 × 90°彎頭,相對) 4 3D雙向彎頭(2 × 90°彎頭,相對,不在同一平面上) 5 三通 6 擴徑管 7 控制閥 8 兩臺測量設備并排安裝,DN ≤ 25 (1"):直接法蘭對法蘭安裝 9 兩臺測量設備并排安裝,DN ≥ 40 (1½"):安裝間隙參考圖示說明
E+H渦街流量計R200相關型號:
|
FDU80F-RN3 |
CYY105-A |
FTL51-AGR2DB4F5A |
FMB70-ABA1HA21GCAA |
|
EC17Z 915933-0001 |
CYY102-A |
FTL51-ABG2BB4G4C,L=148MM |
FDU95-RG4AA |
|
EC17Z |
CYY101-A |
FTL51-ABG2BB4G4C L=148MM |
FDU95-RG3AA |
|
DTI200-A14B1A |
CYR20-0 |
FTL50-KGE2AA4E7A |
FDU95-RG2AA |
|
DTI200-A12B1A |
CYR10-A8 |
FTL50-ATCAAD4G6C |
FDU95-RG1AA |
|
DT1200-A14C1A |
CYR10-A0 |
FMP40-AAA2CRJB21AAL=10000MM |
FDU93-RG4AA |
|
DB52-AM10BB12GF20 |
CYK71, L=20M |
FMP40-1AA2CRJB21AAL=15000mm |
FDU93-RG3AA |
|
DB52-AM10BB11RG20,L=500MM |
CYK71, |
FMI51-A1AGCJA3A1AL=100MM |
FDU93-RG2AA |
|
DB52-AM10BB11RG20,L=4000MM |
CYK71 50M |
FMI51-21AB3KA5A1AL=1650MM |
FDU93-RG1AA |
|
DB51-AE10BE11EG30L=1000MM |
CYK71 10M |
FMD78-1BC7H21KL1AUL=10m |
FDU92-RG4AA |
|
CYY106-A |
CYK71 |
FMD78-1BC7H21B51AUL= |
FDU92-RG3AA |
|
CYY105-B |
CYK71 50088281 |
FMC420-ROA1 |
FDU92-RG2AA |
|
FDU80F-RN3 |
CYY105-A |
FTL51-AGR2DB4F5A |
FMB70-ABA1HA21GCAA |
E+H渦街流量計R200相關產品圖片:
